Sunday, April 12, 2026
Home20-30-3bhk-ground-floor-house-plan

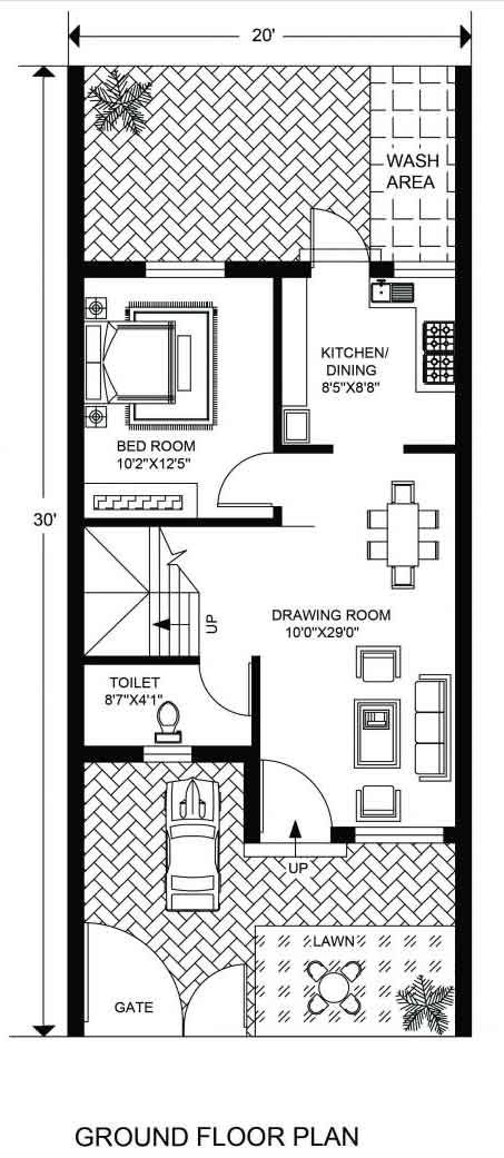
20-30-3bhk-ground-floor-house-plan

20-30-3bhk-first-floor-house-plan
20by30-ground-floor-house-plan
- Advertisment -

Most Read